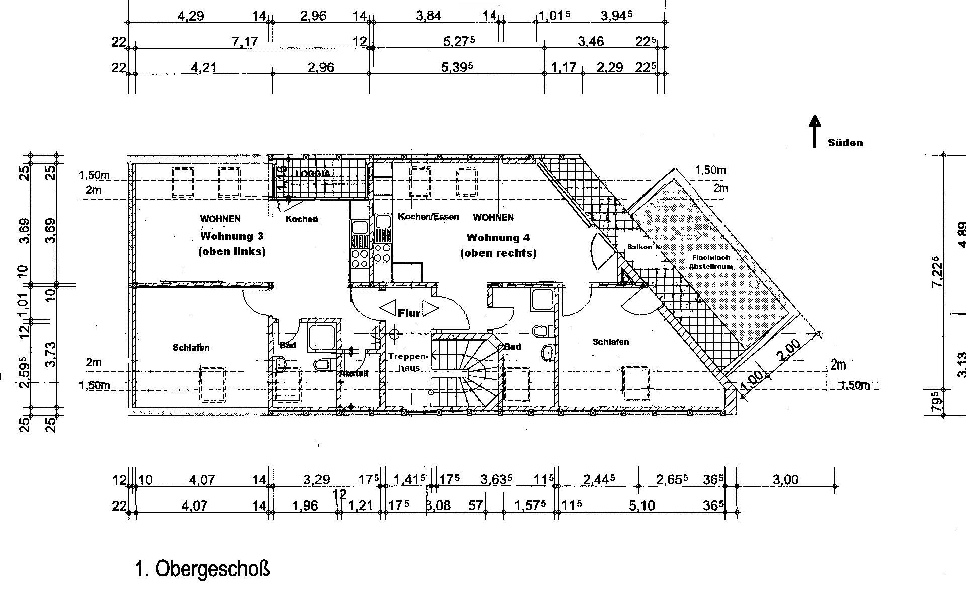
Hinterhaus Dachgeschoss - Wohnung rechts - Grundriss

Der Grundriss der Dachgeschosswohnung:
Die eingezeichnete Möblierung entspricht der Bauzeichnung des Architekten.